
Shovel-ready 0.465 ac office pad in The Offices at Holland Lake, South Tulsa.
Full architectural, civil & landscape plans included. Utilities stubbed, paved access, permit-ready.Offered at $549,000 | 0.465 ac (˜ 20,255 SF)
A rare permit-ready development opportunity in South Tulsa’s professional corridor.
All architectural, civil, and landscaping plans are complete and ready for City of Tulsa submission—allowing immediate transition to permitting and construction.Key Advantages
- Shovel-ready / permit-ready office pad with complete plan set included
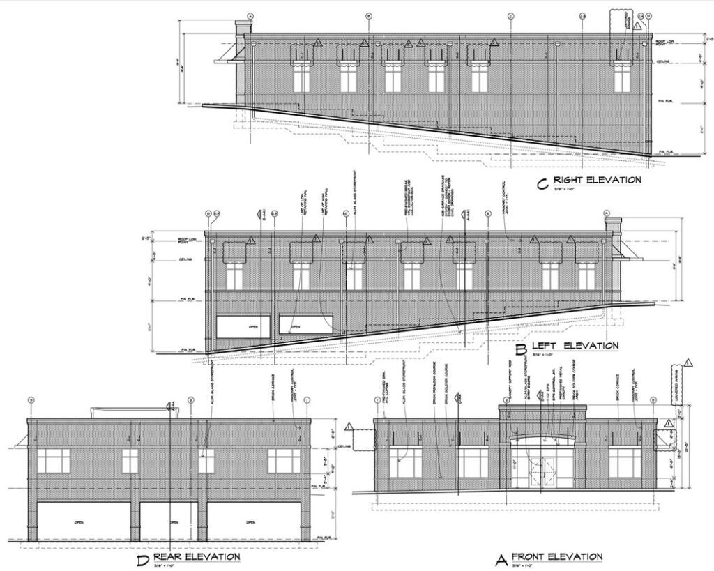
- 5,685 SF medical or professional office design with covered parking (est. $1.7 M build)
- Zoning: OL (Office Limited) – City of Tulsa
- Utilities: City water/sewer, PSO electric, ONG gas, fiber available
- Access: Direct ingress/egress to E 81st St via private Holland Lake Dr
- Located in established medical/professional office park
Included Deliverables
– Stamped architectural drawings for proposed building
– Civil engineering and drainage plans meeting City of Tulsa standards
– Landscape plan per Office District requirements
– Recorded plat and digitalInvestment Rationale
Comparable South Tulsa office land trades ˜ $400 K–$500 K per ½ acre. This site earns a premium for permit readiness, saving 4–6 months and ˜ $75 K–$100 K in pre-development costs. Ideal for medical, dental, wellness, or professional users seeking a turn-key pad with no entitlement risk.Location & Access
Within minutes of U.S. 169, Memorial Dr, and the Creek Turnpike. High-visibility corridor (˜ 22,000 VPD on E 81st St) serving dense residential and Union Public Schools. Surrounded by modern medical and professional offices.Summary
– Address: 5113 E 81st St S, Tulsa OK 74137
– Parcel ID: 76463-83-10-58720
– Legal: Lot 3, Block 1, The Offices at Holland Lake
– Lot Size: 0.465 ac (20,255 SF)
– Owner/Seller: Blue Herring LLC
– Contact: Scott Fisher – Managing Member • 918-947-9431


